Fahrzeuge nach Modellwechsel 1982 GERÄTETRÄGER FÜR STROM VERTEILER ERSETZENAbdeckung abnehmen. Alle Relais und Sicherungen herausziehen. Hinweis:Bei Fahrzeugen mit Diebstahlwarnanlge ist die Abdeckung geschraubt. | Sicherungs Nr.*) | Nennstrom | (A) Benennung | | 1 | 7,5 | Fernlichtscheinwerfer links, Fernlichtkontrolle | | 2 | 7,5 | Fernlichtscheinwerfer rechts | | 3 | 30 | Zusatzlüfter 91° C (StufeI) (nur bei KA) | | 4 | 15 | Fahrtrichtungsanzeiger mit Kontrolle | | 5 | 30 | Wisch-Wasch-, Scheinwerferreinigungs- und Intensiv- | | | reinigungsanglage, beheizbare Spritzdrüsen | | 6 | 7,5 | Bremslicht, elektr. Geschwindigkeitsregelanlage | | 7 | 15 | Fanfare links und rechts | | 8 | 30 | Heizbare Heckscheibe | | 9 | 7,5 | Diagnosestecker KL. 15 | | 10 | 7,5 | Rückleuchte, Instrument, Check-Control Anzeige | | 11 | 15 | Kraftstoffpumpe, Vorförderpumpe | | 12 | 7,5 | Radio-, Bordcomputer-, Display-Beleuchtung | | 13 | 7,5 | Fahrtlicht links | | 14 | 7,5 | Fahrtlicht rechts | | 15 | 7,5 | Nebelschlußlicht, Kontrolle für Nebelschlußlicht | | 16 | 15 | Sitzheizung | | 17 | 30 | - | | 18 | 30 | Zusatzlüfter 99° C (Stufe II Relais K 6 Laststromkreis) | | 19 | 30 | El. Spiegel, Niv. Reg, Memory Sitzverst., Heizungssteuerung | | 20 | 30 | Heizgebläse | | 21 | 7,5 | Innen-Handschuhfach, Gepäckraumleuchte, Handlampe, | | | Digitaluhr, Radiospeicher, Diebstahlwarnanlage, Bordcomputerspeicher, Gong | | 22 | 7,5 | Stand-, Schluß und Parklicht links, Kennzeichnungbeleuchtung | | 23 | 7,5 | Stand-, Schluß und Parklicht rechts, Instrumentenbeleuchtung, | | | Make-up-Spiegel, Motorraumbeleuchtung | | 24 | 15 | Warnblinkanlage | | 25 | 30 | Niveauregulierung | | 26 | 30 | Sitzverstellung | | 27 | 30 | Zentralverriegelung, Türschloßheizung, Diebstahlwarnanlage, | | | Horn | | 28 | 30 | Zigarettenanzünder, Automatikantenne, Standheizung | | 29 | 7,5 | Nebelscheinwerfer links, Kontrolle für Nebelscheinwerfer | | 30 | 7,5 | Nebelscheinwerfer rechts |
Hinweis: ab 9/84 werden die 25 A Sicherungen durch die 30 A Sicherungen ersetzt. *) Siehe Deckelprägung
|  |
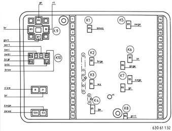
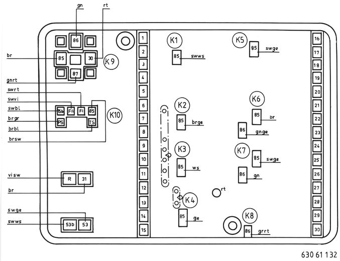
StromverteilerbelegungsplanKennzeichnung: bl = blau br = braun ge = gelb gn = grün gr = grau rt = rot sw = schwarz vi = violett ws = weiß tr = transparent Relais: K1 = Zusatzlüfter St. I K2 = Fanfare K3 = Fernlicht K4 = Fahrlicht K5 = Heizgebläse K6 = Zusatzlüfter St. II K7 Entlastung K8 = Nebelscheinwerfer K9 = Schiebedach, Fensterheber (US/J) K10 = Steuergerät f. Intensivreiniger | Sicherung Nr. | Nennstrom (A) | Ltg.-Farbe | | 1 | 7,5 | wsvi | | 2 | 7,5 | wsbl | | 3 | 25 | swbl | | 4 | 15 | vigr | | 5 | 25 | visw | | 6 | 7,5 | vign | | 7 | 15 | vige | | 8 | 30 | gnbl | | 9 | 7,5 | gnge | | 10 | 7,5 | gnws | | 11 | 15 | gnvi | | 12 | 7,5 | viws | | 13 | 7,5 | gews | | 14 | 7,5 | gebl | | 15 | 7,5 | gesw | | 16 | 30 | gnbr | | 17 | | | | 18 | 30 | swgn | | 19 | 30 | gnrt | | 20 | 25 | gnbl | | 21 | 7,5 | rtgn | | 22 | 7,5 | grsw | | 23 | 7,5 | grgn | | 24 | 15 | rtws | | 25 | 25 | rtbl | | 26 | 25 | rtgr | | 27 | 25 | rtsw | | 28 | 25 | rtge | | 29 | 7,5 | gebr | | 30 | 7,5 | gevi |
Ersatzsicherungen (im Deckel eingest.) 2 Stück 7,5 A 1 Stück 15 A 1 Stück 30 A
|  |